トップ
アクセス
ロケーション
間取り
デザイン
ブランド
現地案内図
物件概要
物件エントリー
物件エントリー者様限定サイト
MENU
CLOSE
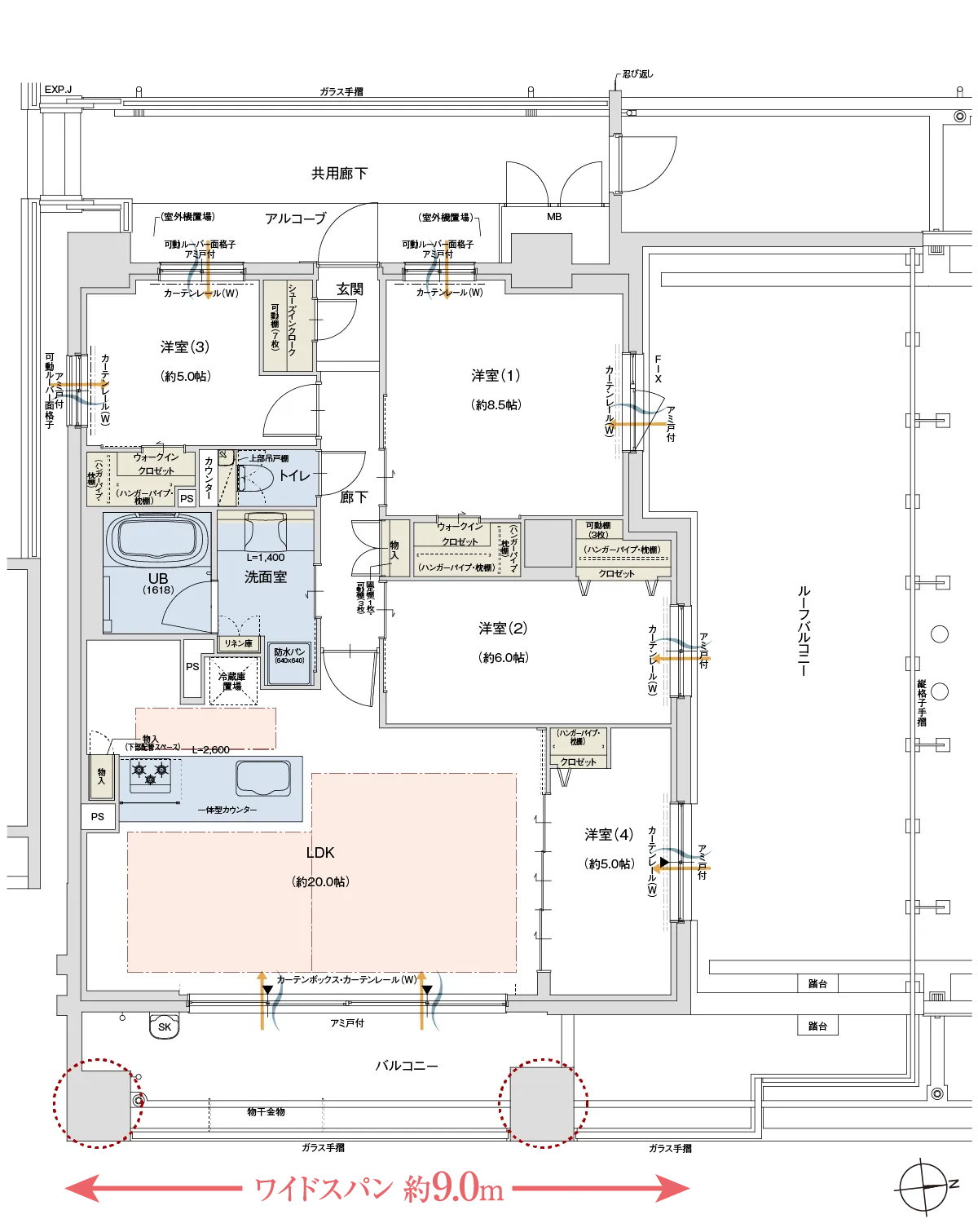
心地よい風を感じながらヨガや読書、家庭菜園も楽しめる41㎡超のルーフバルコニー
三方に窓を設けた、採光・通風に優れたプラン
シューズインクロークと洋室(1)・(3)にウォークインクロゼット設置
洋室(4)の引き戸を開放し、LDKと一体利用で約25.0帖の大空間に
SIC=シューズインクロゼット、WIC=ウォークインクロゼット、S=サービスルーム(納戸)
※掲載の図面は計画段階の図面につき、変更になる場合があります。予めご了承ください。
間取り一覧に戻る
SHINWAレジデンス
SHINWAメンバーズ